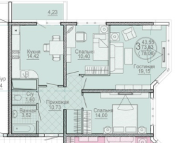
3-к. квартира 85 м², 4/23

муниципальное образование Анапа, Анапа, Крепостная улица, 51к1
Статус:
Архив
Тип:
Продажа
Нас. пункт:
Анапа
Комнат:
3
Этаж:
4
Общая площадь:
85 м²
Жилая площадь:
49 м²

Продается трехкомнатная квартира площадью 85 метра на 4 этаже в жилом комплексе «На Крепостной», расположенном на побережье Черного моря, в уютном оазисе природы и спокойствия. Это уникальный проект, нацеленный на создание максимально комфортной среды для проживания.
Жилой комплекс «На Крепостной» располагается в самом центре курортного города Анапа, в квартале улиц Черноморская – Кирова, Ивана Голубца – Крепостная, на территории пешеходной  зоны парка культуры и отдыха. Комплекс находится в непосредственной близости от  песчаных и галечных пляжей города Анапы.
Пол, потолок, стены – без отделки;
Двери балконные и окна выполняются из профиля пвх;
Входная дверь металлическая;
Внутренние двери отсутствуют;
Электричество заведено в квартиру и произведена разводка до источников потребления;
Сантехника и канализация заведены в квартиру;
Система отопления смонтирована, радиаторы установлены и подключены к системе отопления.

13 500 000 ₽

158 823 ₽ за м²

Объект №43692

№ объекта:
43692
Дата размещения:
22.12.17