Дом 180 м² на участке 5.5 сот

Статус:
Активный
Тип:
Продажа
Нас. пункт:
Комнат:
Этажей
2
Общая площадь:
180 м²
Площадь участка:
5.5 сот

Я СОБСТВЕННИК
Продаю дом быстро поэтому такая цена
Строил для себя,планировал в нем жить.

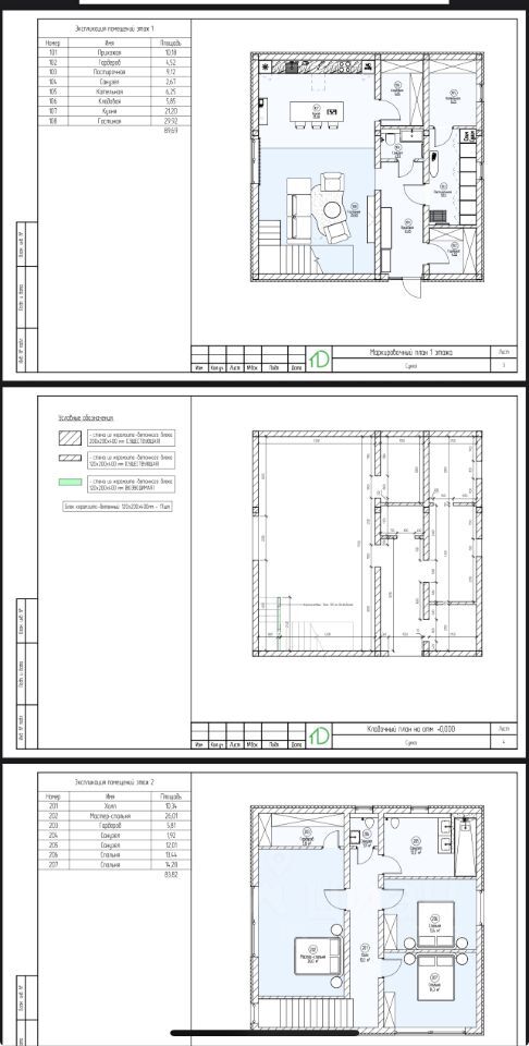
Планировка на последних фото

Фундамент лента в землю 2 метра 15 диаметра арматура 300 бетон
Сверху плита 20 см арматура в два ряда 12 диаметра
Блок керамзит 20 перекрытия 12
Монолитные колонны в круг соединяют дом в единый монолитный каркас,все перекрытия тоже по 20 см
окна профиль элипс раму целиком в массе цвета антрацит,мультипакет везде
Плоская мягкая кровля
Дом строился по проекту ,скину в лс
Также скину полное видео с описанием
Фасад пенопласт 10см сверху сетка клей в два слоя (осталось только выбрать цвет и покрасить)
Скважина 100 метров
Электричество 15 кВт
Дома полностью развел всю электрику ,заложил коммуникации под сантехнику.
Дом полностью отштукатурен и частично зашпаклеван под покраску стен
В доме все лично продумывал до самых мелочей,более подробно расскажу по телефону или при встрече
Пишите либо звоните в любое время до 23:00 я на связи

11 350 000 ₽

63 055 ₽ за м²

Объект №177791

№ объекта:
177791
Дата размещения:
15.12.25