1-к. квартира 55 м², 2/20

муниципальный округ Анапа, Анапа, Владимирская улица, 148к2
Статус:
Активный
Тип:
Продажа
Нас. пункт:
Анапа
Комнат:
1
Этаж:
2
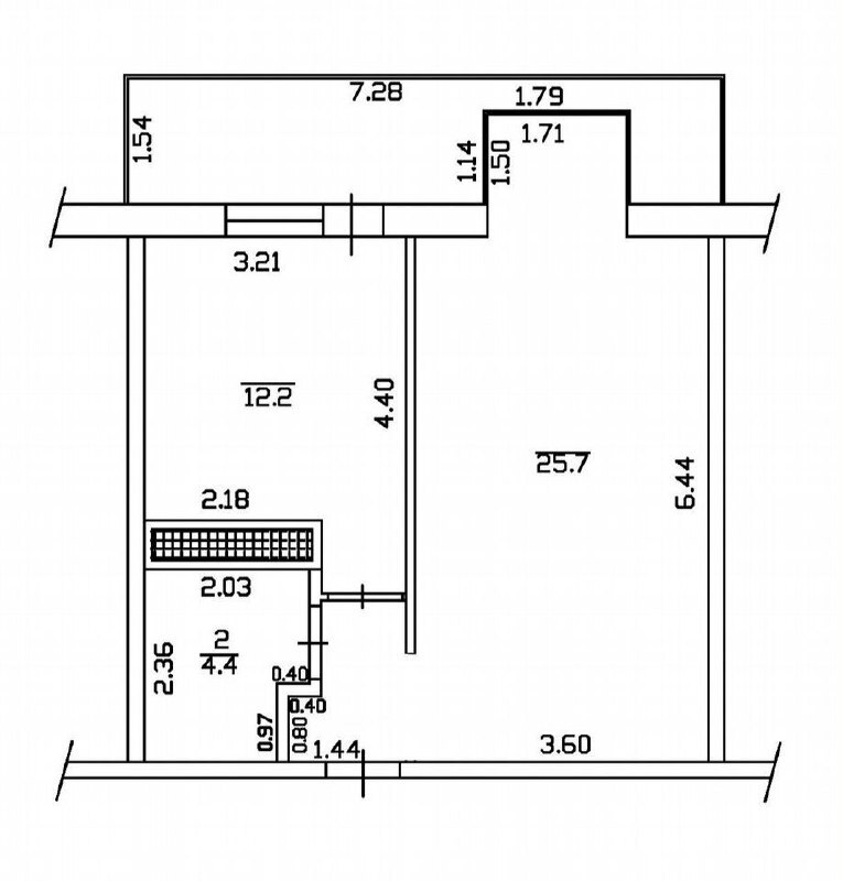
Общая площадь:
55 м²
Жилая площадь:
25.7 м²

Большая однокомнатная квартира по улице Владимирская, ЖК "Адмирал".

О квартире

Квартира с ремонтом. Кухня правильной формы 12,2 квадратных метра. Большая спальня - 25.7 квадратных метров, при необходимости можно зонировать, с панорамиными окнами. Санузел в плитке. Просторный балкон.

О доме

Рядом с домом: гимназия Сириус, детский сад № 4 "Волшебная страна", круглосуточный Магнит, сетевые магазины, кафе, Черноморский парк, Крещенский парк. До моря 1 км.

О сделке

Документы готовы к сделке.

7 450 000 ₽

135 454 ₽ за м²

Объект №179629

Наталья

(938) 535-37-05

написать в whatsapp
№ объекта:
179629
Дата размещения:
06.03.26